Skip to main content
Marvin Chan Architecture and Design
Home
Projects
Services
About
Contact
Home
»
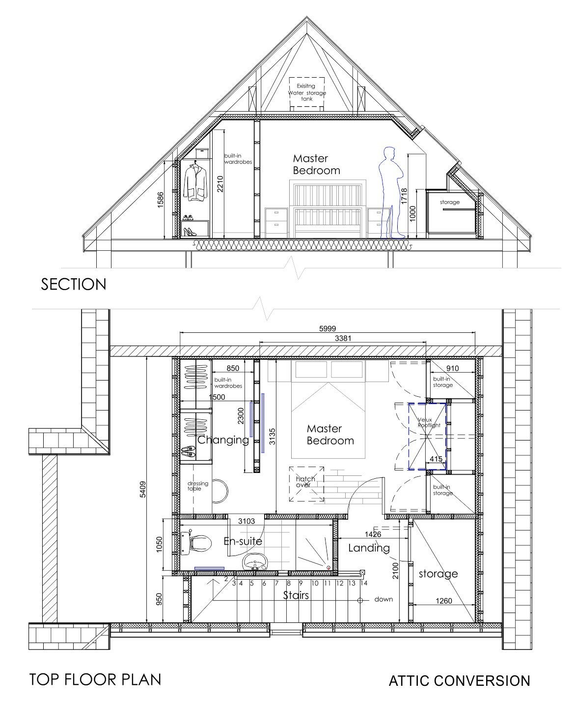
Old Cork Rd
Attic Bedroom Conversion
Old Cork Road, Limerick.